
nanoCAD Геоника – это уникальный программный продукт, работающий на платформе nanoCAD, портирование на платформу nanoCAD известного программного комплекса GeoniCS Топоплан-Генплан-Сети-Трассы-Сечения-Геомодель. Программа позволяет автоматизировать проектно-изыскательские работы и предназначена для специалистов отделов изысканий и генплана.
Модуль «Топоплан» – это ядро программы, позволяющее создавать топографические планы, вести базу точек съемки проекта, строить трехмерную модель рельефа и проводить анализ полученной поверхности. На основе построенной модели рельефа программа позволяет решать целый ряд прикладных задач.
Модуль «Генплан» используется при проектировании промышленных объектов различного назначения, а также объектов гражданского строительства. Модуль обеспечивает полное соответствие требованиям ГОСТ 21.508-93 «Правила выполнения рабочей документации генеральных планов предприятий, сооружений и жилищно-гражданских объектов».
Модуль «Сети» позволяет проектировать внешние внутриплощадочные инженерные коммуникации, в автоматическом режиме получать продольный профиль сети и оформлять необходимые выходные документы.
Модуль «Трассы» обеспечивает проектирование линейно-протяженных объектов и оформление необходимых выходных документов.
Модуль «Сечения» позволяет получить поперечные профили по цифровой модели рельефа и осевой линии трассы, созданных в модулях «Топоплан» и «Трассы», а также запроектировать очертания дорог и водоотводных устройств с расчетом объемов земляных работ и материалов.
Модуль «Геомодель» предназначен для автоматизации процесса подготовки графических отчетных документов инженерно-геологических изысканий (инженерно-геологические разрезы и колонки). Работает при наличии модуля «Топоплан».
На основе модели объекта nanoCAD Геоника автоматизирует выпуск чертежей в строгом соответствии с действующими российскими нормативами оформления документов. Заполняются все требуемые штампы и экспликации, а при необходимости производится автоматическая разбивка на листы заданного формата.
Программа полностью совместима с ПК GeoniCS ТОПОПЛАН-ГЕНПЛАН-СЕТИ-ТРАССЫ-СЕЧЕНИЯ-ГЕОМОДЕЛЬ, поддерживается прямое чтение проектов, выполненных в ПК GeoniCS.
Совместное использование ПК nanoCAD Геоника и программных средств CSoft Development (GeoniCS Изыскания, RasterDesk, Spotlight и др.) обеспечивает комплексность при реализации «сквозных» технологий проектирования.
Модуль «Топоплан»

Модуль «Топоплан» предназначен для создания топографических планов, карт и планшетов масштаба от 1:500 до 1:5000. Включает полную библиотеку топографических условных знаков (точечные, линейные, полосные, площадные), а также средства их отрисовки, редактирования и замены.
Можно выделить три основных источника данных, на основе которых в модуле «Топоплан» создаются топографические карты и модели рельефа:
• архивные картматериалы на твердом носителе. Эти материалы сканируются, полученные растровые изображения корректируются и вставляются в чертеж ДВГ в реальных изыскательских координатах. Соответствующие топознаки отрисовываются в режиме «сколки»;
• данные полевых топографо-геодезических наблюдений, которые можно импортировать из RGD-файла (обменный формат программы GeoniCS Изыскания) или из текстового файла ведомости координат и отметок. Соответствующие топознаки отрисовываются в режиме «сколки» или «замены», если в программе GeoniCS Изыскания были закодированы линейные объекты;
• топологические данные различных ГИС-систем, представляющие описание точечных, линейных и площадных объектов, которые можно импортировать через DXF-файл. Соответствующие топознаки отрисовываются в режиме «замены».

Выбор необходимого топознака возможен несколькими способами: через топографический классификатор, через алфавитный указатель, а также через вызываемые тематические панели инструментов. Кроме того, модуль «Топоплан» снабжен встроенной справочно-нормативной базой, где собрана информация по правилам отрисовки топографических знаков. Реализован режим «ассистента», который предоставляет пользователю подсказки, касающиеся отрисовки выбранных знаков.
В модуле «Топоплан» выделяют раздел «Рельеф». Функции данного раздела предназначены для ведения базы точек съемки проекта и создания трехмерных моделей рельефа или других поверхностей, их отображения и анализа.
Все точки съемки (импортированные из файла или созданные при оцифровке) попадают в базу данных проекта nanoCAD Геоника, где их можно просматривать, редактировать, объединять в группы; точки из базы можно вставлять в чертеж или экспортировать в текстовый файл.
Трехмерная модель рельефа обычно строится с использованием примитивов, полученных на этапе создания топоплана. Могут использоваться и другие источники информации, такие как текстовые файлы, полученные из программ GeoniCS Изыскания, комплекса CREDO и других программ, а также ранее созданные чертежи ДВГ, включающие 3D-полилинии и 3D-грани, горизонтали (отрисованные или полученные при векторизации средствами программ RasterDesk и Spotlight), точки с отметкой по Z, блоки с атрибутами и т.д.
Помимо точек с отметками, при построении модели используется неограниченное количество структурных линий (3D-полилиний), горизонталей (двумерных полилиний с отметками), линий подпорных стенок, линий внешних и внутренних границ модели: это обеспечивает корректность формируемой модели. Проконтролировать правильность построения модели можно с помощью ее трехмерной визуализации или при просмотре сечений по произвольной линии.


Средства редактирования и отображения модели рельефа предоставляют ряд уникальных возможностей:
• автоматическая генерация виртуальных горизонталей при операциях редактирования модели (переброс ребер, изменение отметки и перемещение узла, вставка и удаление точек и граней) позволяет оперативно контролировать правильность внесенных изменений;
• локальная реструктуризация построенной поверхности с помощью структурных линий различных типов делает триангуляцию управляемой: возможна «проводка» структурных линий по уже построенной триангуляции, что очень удобно при моделировании техногенных элементов рельефа;
• построение горизонталей различной степени сглаженности, простановка на них надписей и берг-штрихов.
Модуль «Топоплан» является открытой системой: вы можете самостоятельно модифицировать и пополнять библиотеку условных знаков, использовать модели рельефа, созданные с использованием других программных средств (GeoniCS, AutoCAD Civil 3D, CREDO и др.), передавать модели во внешние расчетные программы.
Результатом работы модуля «Топоплан» являются картированные цифровые модели местности, которые могут использоваться и в топографии, и в ГИС, и при проектировании.
Модуль «Генплан»
________________________________________
Модуль «Генплан» состоит из нескольких функциональных разделов, каждый из которых соответствует строго определенным задачам проектирования генеральных планов (горизонтальная планировка, вертикальная планировка и благоустройство).
азбивочный план (горизонтальная планировка)
________________________________________
Функции этого раздела позволяют быстро отрисовать строительную или геодезическую сетку, проектные контуры, нанести на генплан здания и сооружения, лестницы и ограждения, проставить необходимые координаты и размеры. Все функции высокоинтеллектуальны и соответствуют требованиям действующих нормативных документов.
Экспликация зданий, ведомости дорожек и площадок формируются автоматически.

Организация рельефа (вертикальная планировка и картограмма земляных масс)
________________________________________
Функции этого раздела позволяют расставить опорные точки планировки на осях проездов, внутри кварталов и в углах отмостки, а также в других характерных точках проектируемой площадки. По опорным точкам производится простановка стрелок уклоноуказателей с автоматическим пересчетом значений.

Понятный инженеру интерфейс позволяет легко и наглядно производить моделирование будущего «красного» (проектного) рельефа, редактируя получившуюся «опорную сеть». При редактировании этой сети программа автоматически пересчитывает все связанные с редактируемой точкой отметки и уклоноуказатели.
Модуль «Генплан» предусматривает гибкое сочетание метода опорных точек и метода «красных» горизонталей при построении проектного рельефа: модель может быть построена как по опорным точкам и структурным линиям, так и по опорным горизонталям. Для более подробной проработки «красного» рельефа проектируемая поверхность может быть отредактирована, в том числе с помощью перемещения опорных («красных») горизонталей.
Программа безошибочно, с заданной точностью производит расчет картограммы земляных масс и оформляет чертеж в принятой в России форме.

Благоустройство и озеленение
________________________________________
Функции этого раздела позволяют озеленить и благоустроить проектируемую площадку: «посадить» деревья и кустарники, разместить малые архитектурные формы.
Имеется возможность отрисовки одиночной, аллейной, площадной посадки деревьев и кустарников, различных малых архитектурных форм в соответствии с принятыми стандартными обозначениями на генеральных планах. В то же время эти объекты являются трехмерными, что позволяет проводить визуальный анализ принятых решений и обеспечивает полноценную трехмерную визуализацию проектируемой площадки. Кроме того, в программе предусмотрены такие функции, как моделирование роста деревьев и кустарников, автоматическое «поднятие» на трехмерный рельеф деревьев, кустарников, любых малых архитектурных форм, урн, скамеек, столиков и т.д.

Ведомости элементов озеленения и малых архитектурных форм формируются автоматически и вставляются в чертеж.
Модуль «Сети»
________________________________________
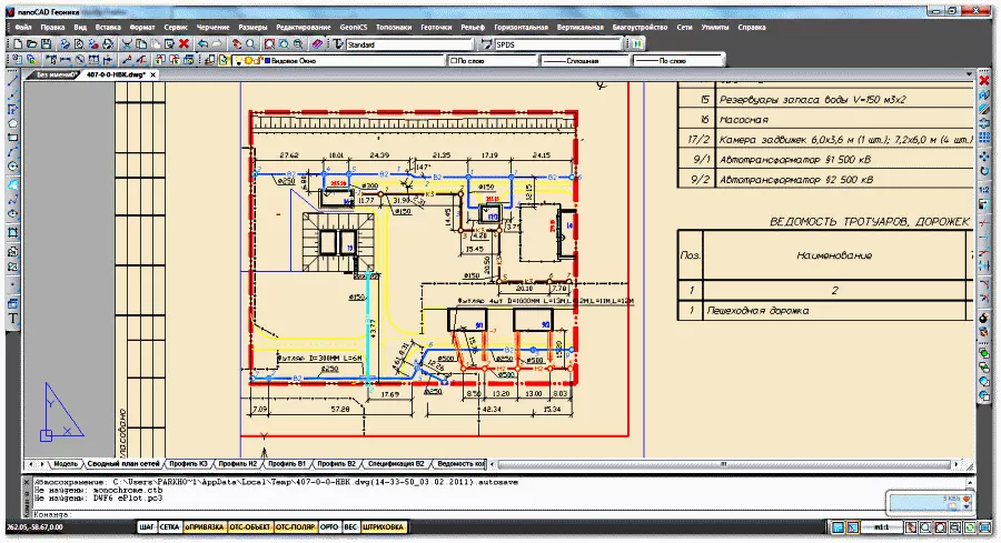
Модуль «Сети» автоматизирует работы по выполнению трассировки инженерных коммуникаций в плане и получению продольного профиля по сети. Модуль оснащен средствами создания сводного плана инженерных сетей. Функции данного модуля обеспечивают возможность с минимальными затратами времени и ресурсов выполнить разводку и совмещение инженерных сетей на проектируемой площадке, оформить подписи, проставить все необходимые размеры и координаты.
Программа имеет встроенные средства контроля нормативных расстояний между инженерными сетями, таблица нормативных расстояний может редактироваться и дополняться. Модуль позволяет проектировать внешние инженерные сети и оформлять необходимые выходные документы. Кроме того, возможно дигитализировать существующие сети и создавать их трехмерную модель. Инженерные коммуникации представлены в виде специального трехмерного объекта (геона), имеющего соответствующий вид и поведение. Упростить проектирование и редактирование сетей позволяет объект «Сеть». Возможно использование данных о существующем и проектном рельефе, топознаках существующих сетей. В зависимости от типа сети ее создание осуществляется по уклону либо на заданной глубине от проектной поверхности. Широкий спектр режимов трассировки сети (замена, накладка на объекты, прокладка на заданном расстоянии от объекта с учетом нормативных расстояний), а также удобный редактор профиля делают процесс создания сети быстрым и простым. По существующим сетям автоматически строятся продольные профили и таблицы колодцев. На всех этапах проектирования возможно редактирование параметров и объектов.



Редактирование параметров сети:














| ||||||||||||||||||||
| ||||||||||||||||||||
| ||||||||||||||||||||
| ||||||||||||||||||||
| ||||||||||||||||||||
| ||||||||||||||||||||
| ||||||||||||||||||||
| ||||||||||||||||||||
| ||||||||||||||||||||
| ||||||||||||||||||||
| ||||||||||||||||||||
| ||||||||||||||||||||
| ||||||||||||||||||||
| ||||||||||||||||||||
| ||||||||||||||||||||
| ||||||||||||||||||||
| ||||||||||||||||||||
| ||||||||||||||||||||
| ||||||||||||||||||||
| ||||||||||||||||||||
| ||||||||||||||||||||
| ||||||||||||||||||||
| ||||||||||||||||||||
| ||||||||||||||||||||
| ||||||||||||||||||||
| ||||||||||||||||||||
| ||||||||||||||||||||
| ||||||||||||||||||||
| ||||||||||||||||||||
| ||||||||||||||||||||
| ||||||||||||||||||||
| ||||||||||||||||||||
| ||||||||||||||||||||
| ||||||||||||||||||||
| ||||||||||||||||||||
| ||||||||||||||||||||
| ||||||||||||||||||||
| ||||||||||||||||||||
| ||||||||||||||||||||
| ||||||||||||||||||||
| ||||||||||||||||||||
| ||||||||||||||||||||
| ||||||||||||||||||||
| ||||||||||||||||||||
| ||||||||||||||||||||
| ||||||||||||||||||||
| ||||||||||||||||||||
| ||||||||||||||||||||
| ||||||||||||||||||||
| ||||||||||||||||||||
| ||||||||||||||||||||
| ||||||||||||||||||||
| ||||||||||||||||||||
| ||||||||||||||||||||
| ||||||||||||||||||||
| ||||||||||||||||||||
| ||||||||||||||||||||
| ||||||||||||||||||||
| ||||||||||||||||||||
| ||||||||||||||||||||
| ||||||||||||||||||||
|
ИЕСофт - лидер рынка по внедрению российского софта
Более 15-ти лет продаем лицензионное ПО. Провели 100+ обучений. Создали 160+ библиотек для САПР и BIM. Разработали 17 плагинов для проектной и строительной отрасли.
Кибербезопасность. BIM Технологии и СОДЫ. Операционные системы и офисное ПО. Импортозамещение.
ИЕСофт работает для вашего бизнеса!
Тех. поддержка
Экономия средств
Вежливые сотрудники
