
МОНОМАХ-САПР предназначен для расчета и проектирования конструкций зданий из монолитного железобетона, а также зданий с кирпичными стенами. В процессе работы производится расчет здания и его отдельных частей с формированием рабочих чертежей и схем армирования конструктивных элементов.
ПК МОНОМАХ-САПР (программа Мономах) незаменим для расчета конструкций жилых и общественных многоэтажных зданий. Программный комплекс оказывает реальную помощь при принятии проектных решений, при разработке индивидуальных проектов (в том числе со свободной планировкой помещений), при большом объеме проектных работ, а также при экспертной оценке выполненных проектов.
Для ускорения создания модели в программе Мономах - КОМПОНОВКА предусмотрено использование планов, созданных в AutoCAD, и моделей, созданных в ArchiCAD. Особо привлекают пользователей высокие темпы моделирования объекта в программах КОМПОНОВКА, ПЛИТА, РАЗРЕЗ (СТЕНА) с последующим экспортом данных в ПК ЛИРА-САПР, а также выполнение чертежей железобетонных конструкций.
Реализация современных концепций информационных систем.
Работа в среде Windows 7/8/10.
Расчет модели здания и его конструктивных элементов.
Реализация строительных норм и правил Украины и России.
Формирование рабочих чертежей и схем армирования.
Информационная связь с AutoCAD, ArchiCAD, ФОК-ПК.
Экспорт расчетных схем в программный комплекс ЛИРА-САПР.
Непрерывное развитие и постоянное сопровождение.
Комплекс состоит из отдельных программ - КОМПОНОВКА, БАЛКА, КОЛОННА, ФУНДАМЕНТ, ПОДПОРНАЯ СТЕНА, ПЛИТА, РАЗРЕЗ (СТЕНА), КИРПИЧ. Эти программы связаны информационно, кроме того, каждая из них может работать в автономном режиме.
КОМПОНОВКА
Создание модели проектируемого здания из конструктивных элементов на плане произвольной конфигурации. Автоматический сбор нагрузок, подбор и проверка сечений конструктивных элементов. Определение расхода и стоимости материалов. Формирование пространственной расчетной схемы здания и конечно-элементный расчет с возможностью анализа результатов. Экспорт данных в программы конструирования. Экспорт нагрузок на фундаменты в ФОК-ПК, экспорт расчетной схемы в программный комплекс ЛИРА-САПР.

БАЛКА
Проектируется монолитная железобетонная многопролетная балка с переменной высотой сечения по пролетам. Сечение балки прямоугольное, учитывается наличие полки. Формирование схемы выполняется в режиме импорта и в автономном режиме.
Выполняется расчет балки по первому и второму предельным состояниям (расчет по раскрытию трещин). Выполняется построение огибающих эпюр перемещений, усилий.
Определяется необходимая площадь сечения арматуры. Выполняется построение эпюры материалов. Балка конструируется сварными каркасами или вязаной арматурой. Выполняется чертеж.

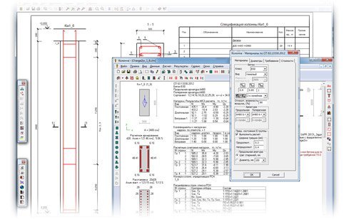
КОЛОННА
Проектируется монолитная железобетонная колонна различных форм сечений: прямоугольного, таврового, крестового, уголкового, кольцевого и других. Формирование схемы выполняется в режиме импорта и в автономном режиме.
Выполняется расчет колонны по первому и второму предельным состояниям (расчет по раскрытию трещин). Определяется необходимая площадь сечения арматуры, производится конструирование. Выполняется чертеж.

ФУНДАМЕНТ
Проектируется монолитный железобетонный фундамент под колонны для заданных инженерно-геологических условий строительства. Формирование схемы выполняется в режиме импорта и в автономном режиме.
Выполняется расчет основания и фундамента. Определяется необходимая площадь сечения арматуры, производится конструирование. Выполняется чертеж.

ПОДПОРНАЯ СТЕНА
Проектируется монолитная железобетонная уголковая подпорная стена для заданных инженерно-геологических условий строительства. Выполняется проверка массивной подпорной стены. Формирование схемы выполняется в автономном режиме.
Выполняется расчет по первому и второму предельным состояниям (расчет по раскрытию трещин). Определяется необходимая площадь сечения арматуры, производится конструирование. Выполняется чертеж.

ПЛИТА
Проектируется монолитная железобетонная плита перекрытия, а также фундаментная плита на естественном основании или на свайном поле. Контур плиты может иметь произвольное очертание, учитывается переменная толщина плиты и наличие отверстий.
Расчет плиты выполняется совместно с балочными конструкциями. Учитывается податливость опор. Для фундаментной плиты предусмотрено задание участков с разными характеристиками грунта. Формирование схемы выполняется в режиме импорта и в автономном режиме. По результатам расчета выполняется построение полей перемещений и усилий, а для заданного отрезка - построение эпюр. Выполняется построение полей напряжений под подошвой фундаментной плиты или построение мозаики усилий в сваях. Выполняется экспорт расчетной схемы в программный комплекс ЛИРА-САПР.
Выполняется расчет плиты по первому и второму предельным состояниям (расчет по раскрытию трещин). Определяется необходимая площадь сечения арматуры, выполняется построение полей расчетного армирования. Плита конструируется сетками и стержнями. Выполняется чертеж.

РАЗРЕЗ (СТЕНА)
Проектируется монолитная железобетонная стена произвольного контура совместно с примыкающими рамными конструкциями. Учитывается переменная толщина стены и наличие отверстий. Формирование схемы выполняется в режиме импорта и в автономном режиме.
По результатам расчета формируется изображение деформированной схемы. Выполняется построение полей перемещений и напряжений для элементов стен, эпюр расчетных усилий для стержневых элементов. Выполняется экспорт данных в программы конструирования БАЛКА и КОЛОННА. Выполняется экспорт расчетной схемы в Программный комплекс ЛИРА-САПР.
Выполняется расчет стены по первому и второму предельным состояниям (расчет по раскрытию трещин). Определяется необходимая площадь сечения арматуры, выполняется построение полей расчетного армирования. Стена конструируется сетками и стержнями. Выполняется чертеж.

КИРПИЧ
Выполняется расчет общей схемы здания с учетом совместной работы кирпичных стен и железобетонных включений (железобетонные пояса, железобетонные обоймы, конструкции железобетонных лифтовых шахт, колонн, пилон и др.). Учитывается внецентренное опирание перекрытий на кирпичные стены.
Для заданных уровней кирпичных стен выполняется расчет отдельных участков и в случае необходимости армирования, определяется количество рядов кладки через которые устанавливаются сетки и формируются соответствующие чертежи.

ГРУНТ
Формируется пространственная модель грунтового основания по заданным инженерно-геологическим условиям площадки строительства. Для описания площадки строительства задается база характеристик слоев грунта (ИГЭ), указывается расположение и отметки устья скважин, слои грунта составляющие ту или иную скважину. Для произвольных штампов нагрузок от проектируемых или существующих зданий определяется поле осадок; по нескольким методикам выполняется расчет и определение жесткости грунтового основания (коэффициентов постели).
Вычисленные переменные по области фундаментной плиты коэффициенты пастели экспортируются в программы КОМПОНОВКА и ПЛИТА, где используется при расчете фундаментов и фундаментных плит.
| ||||||||||||||||
| ||||||||||||||||
| ||||||||||||||||
| ||||||||||||||||
| ||||||||||||||||
| ||||||||||||||||
| ||||||||||||||||
| ||||||||||||||||
| ||||||||||||||||
| ||||||||||||||||
| ||||||||||||||||
| ||||||||||||||||
| ||||||||||||||||
| ||||||||||||||||
| ||||||||||||||||
| ||||||||||||||||
| ||||||||||||||||
| ||||||||||||||||
| ||||||||||||||||
| ||||||||||||||||
|
ИЕСофт - лидер рынка по внедрению российского софта
Более 15-ти лет продаем лицензионное ПО. Провели 100+ обучений. Создали 160+ библиотек для САПР и BIM. Разработали 17 плагинов для проектной и строительной отрасли.
Кибербезопасность. BIM Технологии и СОДЫ. Операционные системы и офисное ПО. Импортозамещение.
ИЕСофт работает для вашего бизнеса!
Тех. поддержка
Экономия средств
Вежливые сотрудники
